OVERVIEW
The original project scope of the Baltimore Convention Center called for the replacement of the existing roof membrane due to membrane failure and subsequent leaking into the Convention Center’s main halls below.
Once the site was studied, the Barrett Company suggested that the Convention Center take advantage of the opportunity to upgrade the aesthetic and functional qualities of the Terrace with a Greenroof installation.
With this new focus, the scope of the project shifted toward creating an outdoor garden that was designed to be aesthetically pleasing, functional, and sustainable. The new roof garden also helps reduce runoff, which does not immediately discharge to the local stormwater system, but instead runs through the building and will allow the plumbing systems to have a longer life cycle.
OPEN & INVITING
According to Gant Brunett Architects, the new surface includes structural sunshade devices, plant materials, trees, a new deck membrane, lighting, and water features. National Roofing Co. provided the complete terrace roof replacement with a Barrett Greenroof-Roofscape®, including ponds, canopies, lighting systems, and pavers, all protected with Barrett’s RamTough 250 Hot Applied Rubberized Asphalt Waterproofing Membrane.
Prior to the installation, guests did not use the terrace on hot or even temperate days due to its uninviting nature. With open seating and an extensive garden, the Terrace creates an inviting outdoor green space above the exhibition halls for Convention guests to enjoy the scenic views of the city. And with views twenty feet above street level, the terrace affords its visitors a perfect people-watching perch for the heavy Pratt Street pedestrian traffic and the Downtown commerce area.
In the ten years since it was first opened up to the public, the terrace has proven itself to be a favorable attraction for visitors from all walks of life.
“With benches and tables scattered throughout the garden, you can tell the owner’s intent was to bring people outside, not only to look onto the city surrounding them, but to sit down and enjoy the unique natural environment. As I visit other cities I’m jealous of the green spaces they have for people to just relax and take in nature. I’m glad I visited this roof garden as I now have a place to show off to visitors and colleagues alike.” – Ryan Miller (via Green Roof Technology Blog)
Certainly, the colorful combination of ornamental trees, shrubbery, vines, perrenials, and general groundcover has created a calm and comforting environment for any who come upon the Convention Center’s vast rooftop garden. But the same diversity that is so evident in the design of the terrace and its unique horticulture has been reflected amongst its regular visitors.
In addition to the flurries of regular convention-goers, the center’s lush, open green rooftop has also become a popular destination for outdoor weddings, private parties, and even yoga classes. And with an herb garden of basil, rosemary, sage, and thyme, it isn’t all that surprising to see local chefs and culinary enthusiasts roaming the botanical aisles.
SUSTAINABILITY
For the staff at the Baltimore Convention Center, the terrace reaffirms their ongoing campaign to promote sustainability. Their “Sustainability” initiative is focused on building and implementing an innovative environmental management system that sustains the needs of their daily operations, and also serves to educate and benefit their staff, industry partners, and clientele on the importance of carbon footprint reduction.
The push for sustainability and efficiency isn’t isolated to the outside of the building. Inside the facility, the sustainable aesthetic can be seen in the construction of the center’s lobbies with floor to ceiling glass windows that not only provide a beautiful view of the surrounding area but also showcase the use of natural light to illuminate the common areas of the building.
DESIGNED WITH PURPOSE
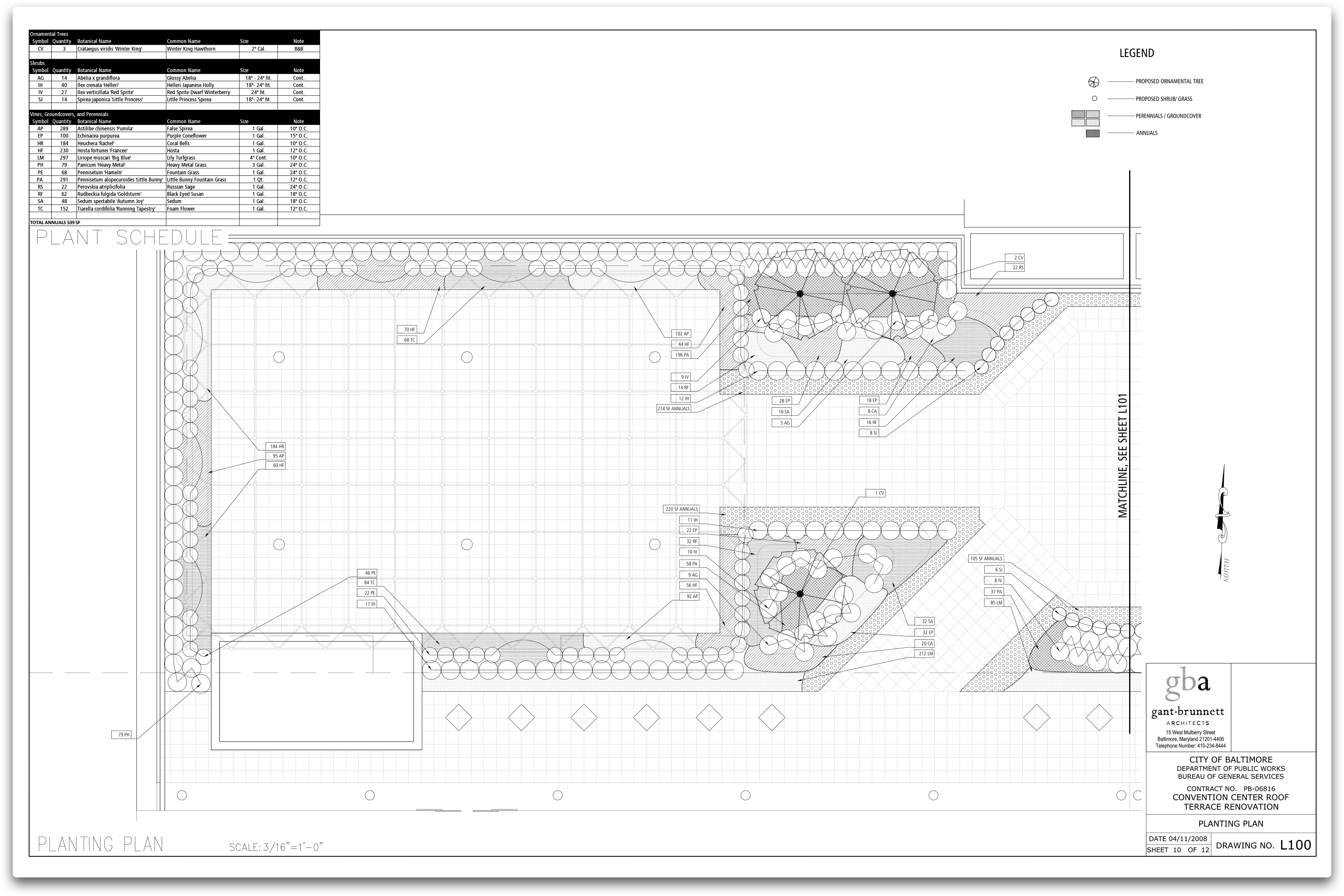
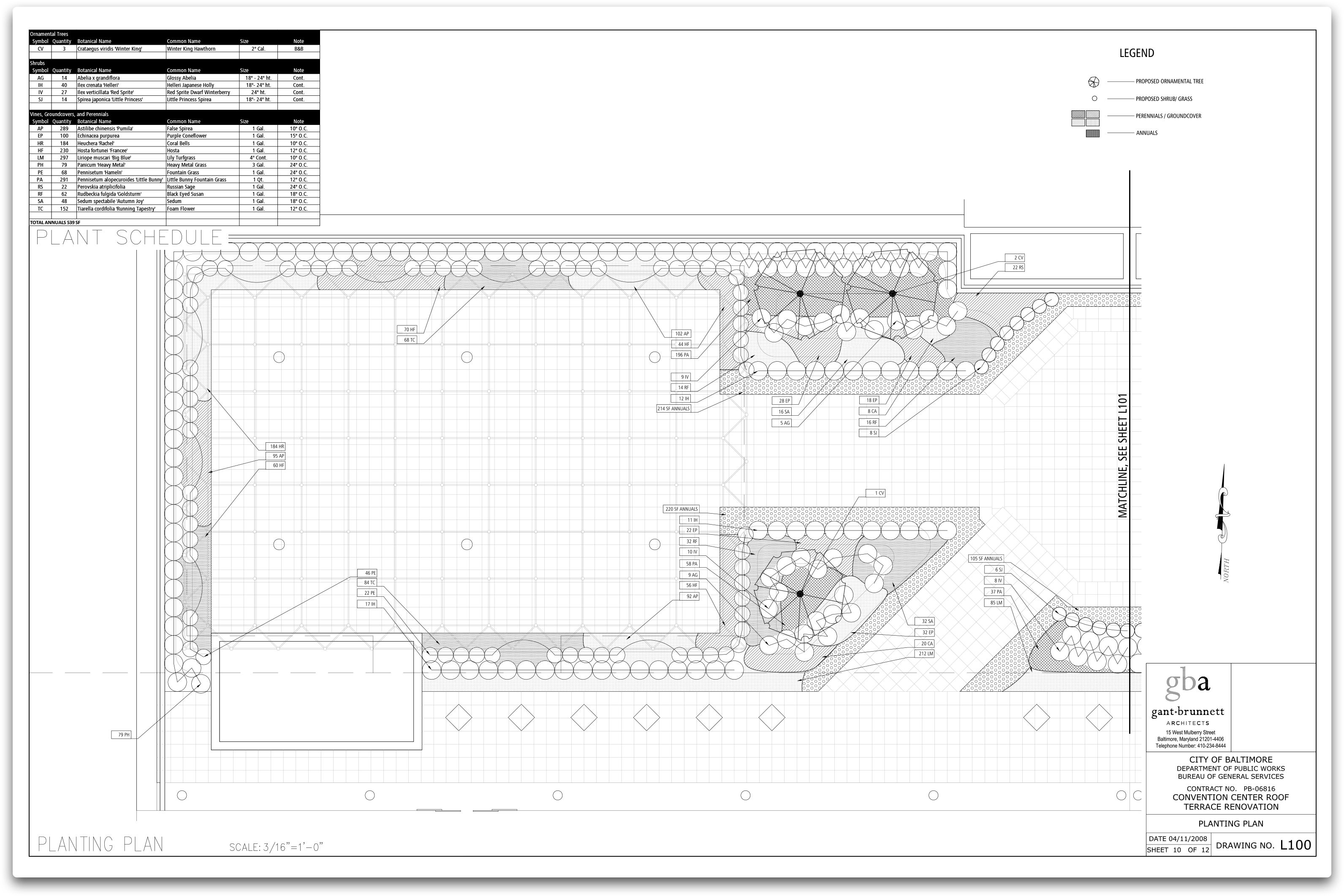
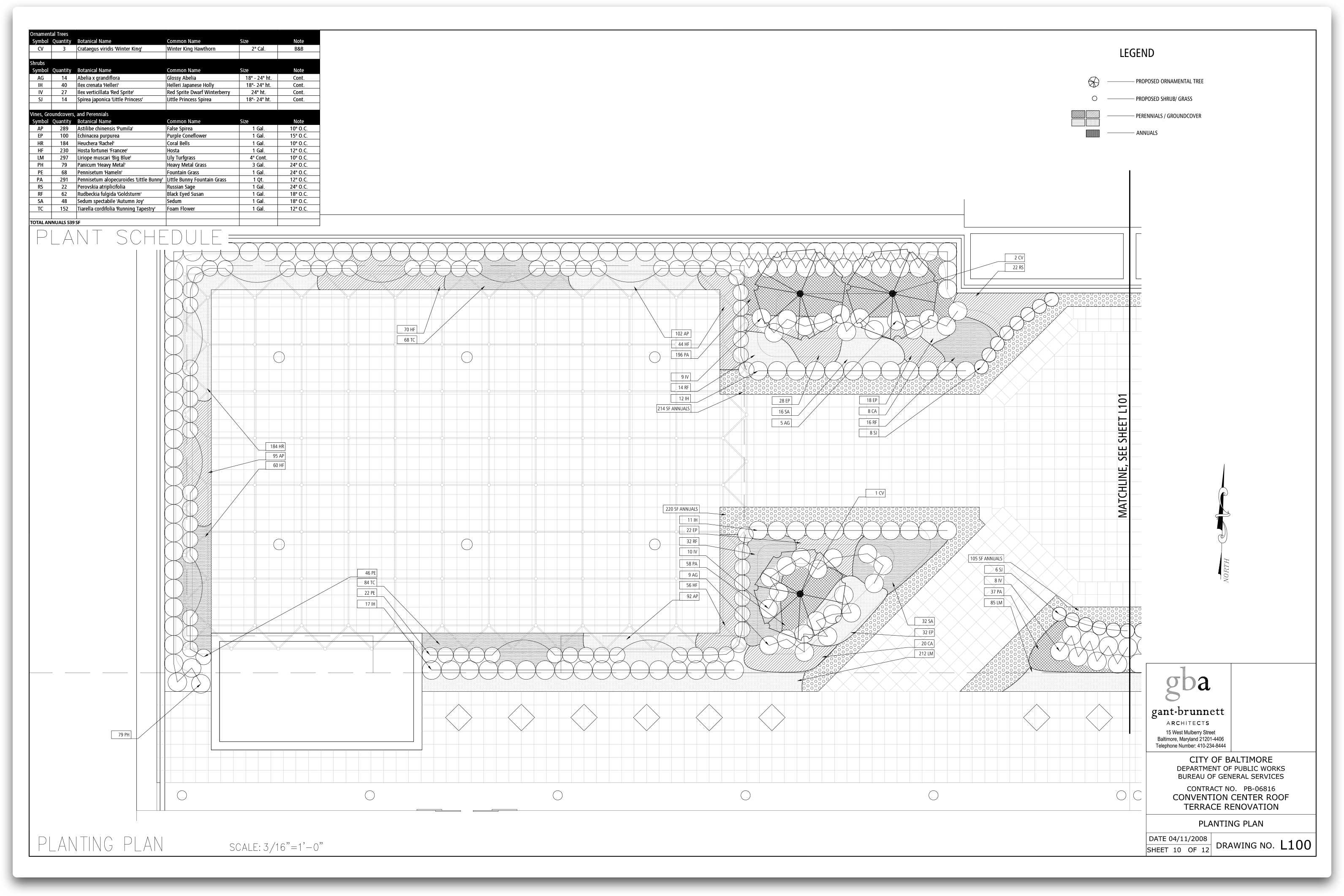
The beautifully scenic and inviting nature of the Baltimore Convention Center’s terrace can no doubt be attributed to the extensive vegetation and plant life that makes up the vast rooftop garden. And this was no accident— Chris Labosky, LEED AP from Gant Brunnett Architecture, put a lot of thought and care into the horticultural design of the rooftop garden, designing a landscape that evokes balance between form & function; aesthetic & application; beauty & basis.
PLANT GALLERY
- Astilbe False Spirea
- Autumn Joy Sedum
- Big Blue Liriope Turfgrass
- Glossy Abelia
- Helleri Japanese Holly
- Heuchera “Rachel”
- Hosta Fortunei Francee
- Little Princess Spirea
- Panicum Heavy Metal
- Pennisetum Alopecuroides “Little Bunny”
- Pennisetum Hameln
- Purple Coneflower
- Red Sprite Dwarf Winterberry
- Rudbeckia Fulgida “Black-Eyed Susan”
- Russian Sage
- Tiarella Cordifolia Foam Flower
- Winter King Hawthorn
PROJECT PARTNERS:




























